House Ruppen in old Saas-Grund. Reserved.
- Property Type: Andere
- City: Saas Balen
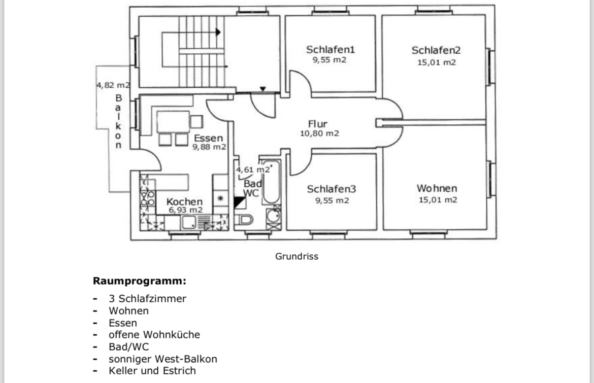
- Rooms: 4.5
- Bedrooms: 3
- Floor: 2
- Property size: 100 m²
- Bathrooms: 1
Details
Spacious, renovated 4.5-room flat in old Saas-Grund.
The ski bus takes you directly to the ski areas of Saas-Grund, Saas-Fee and Saas-Almagell.
The solid brick residential building was constructed in 1949. The flat underwent a comprehensive total renovation in 2017. All windows, the kitchen, the bathroom and all floors and walls were replaced. In addition, the stairwell was repainted and tiled. In 2025, the oil burner was replaced and the roof was repaired at the same time. The flat is therefore in very good condition and well maintained.
There are four owners in total in the building. There are three flats and a shop in the building, which is currently used as a storage room. The other flats are used by the owners themselves as holiday homes. The flat advertised is on the 2nd floor. The flat also includes half a cellar and half of an attic compartment.
The house is heated and hot water is provided by a central oil heating system.
The house is managed by the son of the owner of the flat on the 4th floor. The management costs amount to CHF 100 per year, which corresponds to CHF 25 per party.
Currently, each party transfers CHF 500 per year to a joint account to cover running costs. These include expenses for the chimney sweep, the oil heating service subscription, the administration fee and the meter charges. In 2024, these ancillary costs amounted to a total of CHF 1,385.30, which corresponds to CHF 346.30 per party.
In addition, there is a separate oil account into which all owners have paid a one-off amount of CHF 2,000. The oil bill is paid annually from this account. Individual oil consumption is determined using meters and billed to the respective parties on a pro rata basis. The corresponding amount is then paid back into the oil account.
For our permanently rented flat, the costs for heating and hot water amounted to CHF 1,988 per year. The other parties, who use their flats as holiday homes, paid between CHF 900 and CHF 1,200, depending on consumption.
Overview of additional costs:
Electricity: CHF 177
Oil (heating and hot water): CHF 1,988
Chimney sweep: CHF 94
Property tax: CHF 53
Administration: CHF 25
Water: CHF 400
Building insurance: CHF 500
This results in annual additional costs of around CHF 3,400 for permanent rental.
No renovations or major maintenance work are currently planned.
- ID: 43795
- Published: 18th January 2026
- Last Update: 2nd February 2026
- Views: 78

